Pier 70 Parcel D
San Francisco, CA
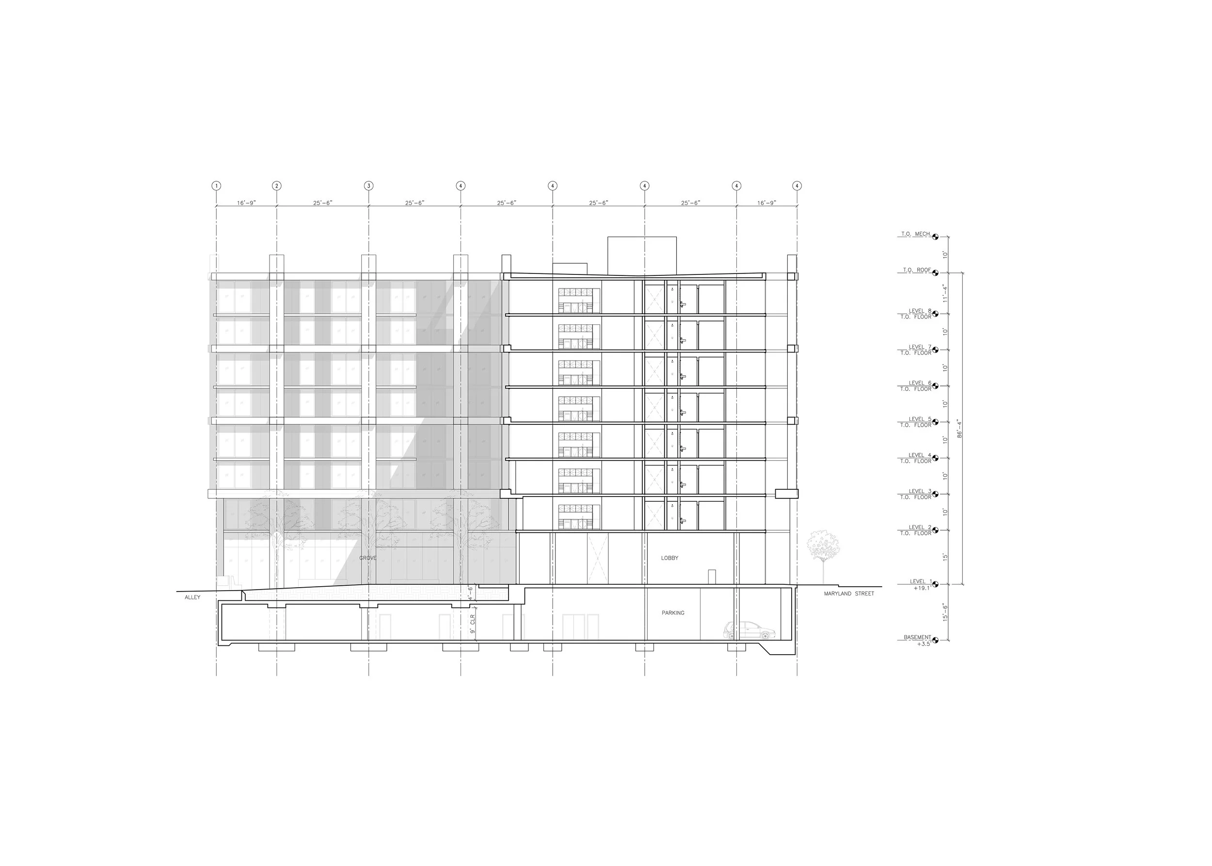
The context of Pier 70 are a number of historic industrial buildings. The design of these buildings is as much engineering as architecture; raw expressions of materials and purpose. These functionalist structures emerge from the logic of construction. Our starting point for Pier 70 Parcel D follows this heritage. Structural elements, typically buried within the building, are moved to the exterior as moment frames which provide lateral and gravity support for the floors, and become the skin of the building, expressing the reality of construction as the image. This gridded structural frame is double height, giving the building a scale to match the neighbors. Within the frame, a smaller scale expresses individual floor levels and the units within. These are infilled with both glazing and zinc panels, creating a secondary rhythmic order. The two bars of building are articulated with vertical cuts which express the intersecting points of the l. The immediate neighbors are Building 12 with its crenelated roofline and perforated metal skin, and Building 2, a punctured concrete wall building. Our project synthesizes and abstracts elements from these. The crenellations are echoed in columns which project above the roof, the perforated repetitive windows are expanded to the scale of the grid and a more open skin to reflect the residential program within, while maintaining the spirit of functionalist architecture. The l-shaped building wraps a grove of trees with a passage that cuts through to Maryland Street, keeping the ground floor porous and public. A retail space edges the grove, Market Square and Maryland Street. The remaining bar houses the lobby and common amenities which overlook the grove, with loft town houses along 21st street. Above are studio, one, two and three bedroom units stacked on seven levels, with common outdoor space on the rooftop.
