1600 Market Street
San Francisco, CA
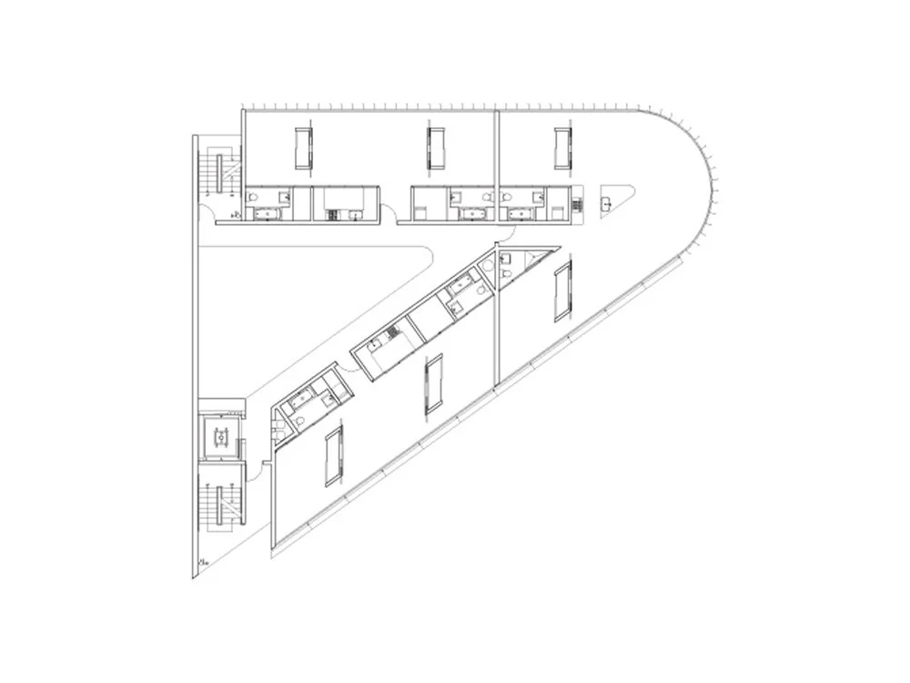
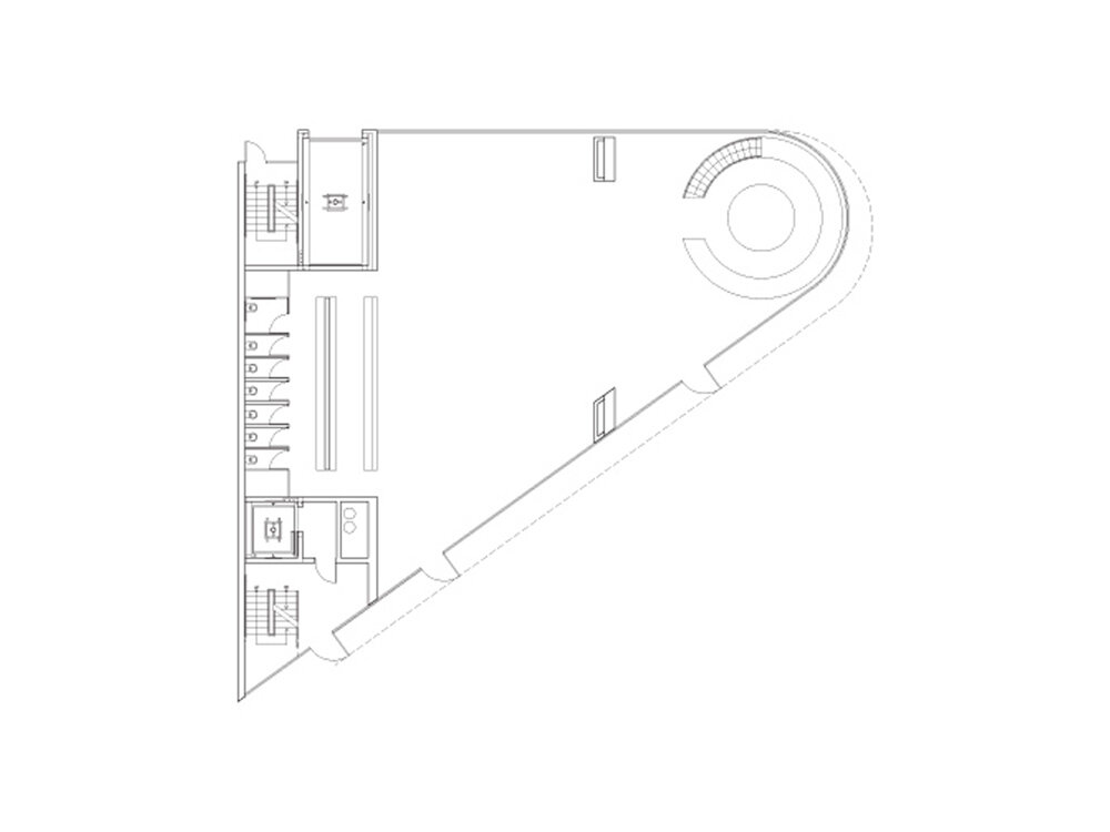
The rectangular South of Market street grid intersects the older northern grid diagonally at Market Street, creating a series of triangular sites at the points of connection. This is one of those triangular lots at the corner of Market and Page Streets. This flatiron site is lined with thick wall units along the two frontages, creating a smaller triangular rear yard at the center of the lot. The expression of the building acknowledges the importance of these highly visible and memorable markers along the main street of the city. The delicate façade of vertical filigree continues the building textures so typical of San Francisco in a contemporary palette of concrete and glass, creating shading and layering for the units within, at this busy intersection.
